Die Seniorentagespflege liegt am Rande der Stadt Neusalza-Spremberg. Sie wurde 2022 mit viel liebe zum Detail vollsaniert. Das offene Raumkonzept schafft eine einladende und freundliche Atmosphäre, in der sich die Besucher frei bewegen können. Große helle Fenster durchfluten die Räume mit natürlichem Licht und sorgen so für eine warme, angenehme Stimmung. Die Tagespflege wurde in der alten "Knöpelei" in Neusalza-Spremberg ausgebaut.
Die Tagespflegeeinrichtung in Großpostwitz, Raschaer Siedlung 2c, befindet sich in einem modernen Neubau, der nicht nur durch seine zeitgemäße Architektur besticht, sondern auch optimal an die Bedürfnisse der Gäste angepasst ist. Die Kombination aus einem modernen Neubau, der in eine ruhige, naturnahe Umgebung eingebettet ist, und der praktischen Anbindung an das regionale Versorgungsnetz macht die Tagespflege in der Raschaer Siedlung zu einem idealen Ort für die Betreuung und Pflege von Senioren.
Die Öffnungszeiten der Tagespflege sind Montag bis Freitag von 7:30 Uhr bis 15:30 Uhr.


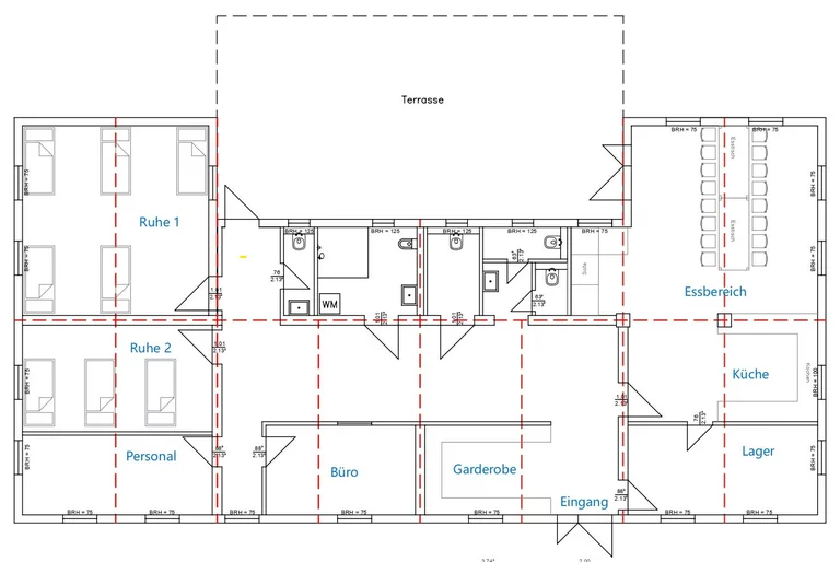
Die 369qm große Tagespflege in Neusalza-Spremberg
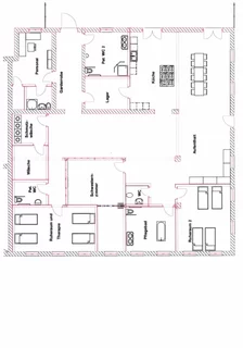
und 254qm große Tagespflege in Großpostwitz sind sehr identisch aufgebaut.
Jede hat einen direkten Zugang nach außen auf die Terrasse.
In beiden Tagespflegen ist im hinteren Bereich ein großer offener und heller Gruppenraum, der mit einer offenen Küche eine Gesamtfläche von 60qm hat.
Es gibt noch verschiedene Ruheräume zum Erholen, die tagsüber auch zur Betreuung genutzt werden können.
Senioren- und Behindertengerechte Bäder und WC erleichtern die Selbständigkeit der Senioren.
Alle Räume sind barrierefrei.


Im Gartenbereich befindet sich eine große Terrasse, welche vom Gruppenraum barrierefrei betreten werden kann. Der komplette Gartenbereich, der zur Tagespflege gehört, ist eingezäunt, dass auch demenziell erkrankte Gäste sich sicher und frei im Außenbereich bewegen können.
